Moderni hirsinen pihavarasto 45mm hirrestä lapekatolla. Kevythirsivarastot kootaan perinteiseen tapaan yksittäisistä 45 millin paksuisista kevythirsilaudoista rakentamalla.

Pyydä tarjous
Voit pyytää myös tarjouksen tuotteesta alla olevalla lomakkeella.
Kuvaus
Kattava mallistomme pitää sisällään monipuolisesti huussit, varastot ja kaikki muutkin piharakennukset. Jokainen piharakennuksemme on tilattavissa edullisesti ja nopealla toimituksella suoraan kotiisi. Mallimme on helppo koota valmiiksi saakka omin voimin. Jos etsit muita vaihtoehtoa, löydät valikoimistamme paljon hyviä ratkaisuja.
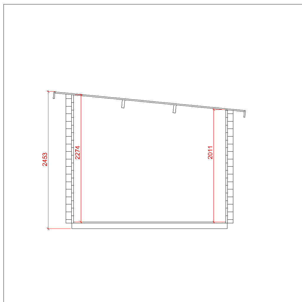
Tuotetiedot:
- Pinta-ala: 5,3 m2
- Leveys 279 cm
- Syvyys 189 cm
Lisätiedot
| Pinta-ala | 5,3 m2 |
|---|---|
| Mitat | 279 cm x 189 cm |
| Paketin mitat ja paino | 240 cm x 115 cm x 80 cm / 850 kg |














