Sauna Sampo tarjoaa kaksi erillistä tilaa, jotka jaetaan väliin sijoitetulla ja katetulla terassiosalla. Lattiasta kattoon saakka ulottuvat pystyikkunat tekevät pukuhuoneesta mukavan valoisan ja ilmavan. Toisella puolella sijaitsevassa saunaosassa vihdotaan rentouttavissa löylyissä. Reunasta reunaan ulottuvan vaakaikkunan ansiosta nautit eteesi avautuvista maisemista löylyjen keskellä!
Puuosat ovat Kaarinan tehtaillamme valmistettua 45mm kevythirttä, jonka raakamateriaaliana käytämme kestävää ja vahvarakenteista kotimaista kuusta.

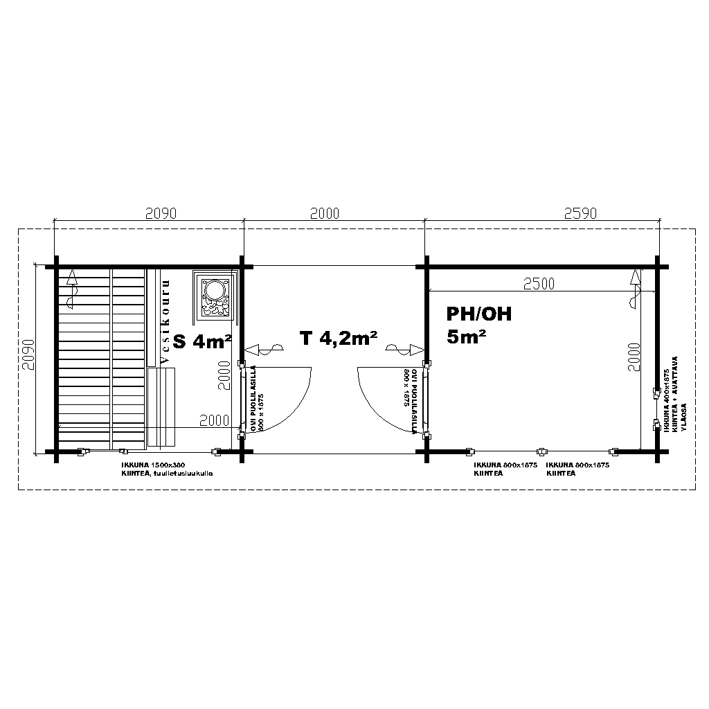
Kuvaus
Sauna Sammon peruspaketti sisältää kaikki piharakennukseen kuuluvat puuosat erikseen tilattavia lauteita lukuun ottamatta. Peruspakettiin kuuluvat myös kaikki ovet saranoineen ja lukituksen mahdollistavine lukkorunkoineen sekä ikkunat avausmekanismeineen valmiiksi lasitettuina ja heloitettuina.
Tuotetiedot:
- Pinta-ala: 9,5 m2
- Leveys 668 cm
- Syvyys 229 cm
Lisätiedot
| Pinta-ala | 9,5 m2 |
|---|---|
| Mitat | 668 cm x 229 cm |
| Paketin mitat ja paino | 730 cm x 115 cm x 70 cm / 1900 kg |




















