Helppå-varasto 3×3
Pohjakuva

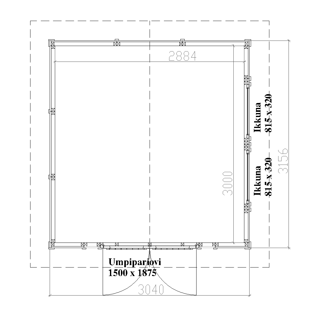
Tekniset tiedot
| Pinta-ala | 9.6 m² |
| Leveys | 315.6 cm |
| Syvyys | 304 cm |
| Pakkauksen paino | 940 kg |
| Pakkauksen mitat | 330 × 115 × 116 cm |
Helppå-malliston valmiiksi sahatut ja höylätyt puuelementit kokoaa nopeasti ja vaivattomasti. Valmismalliston lisäksi voit tilata yksittäisiä Helppå-elementtejä, joita yhdistämällä rakennat omanlaisesi piharakennuksen. Helppå-malliston jokainen elementti saa sahausmenetelmämme ansiosta puun pintaa korostavan, yksilöllisen jäljen.
Piharakennukset kattavasti kotimaisesta valikoimasta
Kattava mallistomme pitää sisällään monipuolisesti kaikki piharakennukset. Jokainen tuotteemme on tilattavissa edullisesti ja nopealla toimituksella suoraan kotiovellesi. Kaikki mallimme ovat koottavissa omin voimin, mutta voit tilata meiltä myös avaimet käteen -palvelun ja pystytysapua. Helppå-malliston lisäksi valmisvalikoimastamme löytyy muitakin hyviä ratkaisuja. Muistathan, että voit myös ottaa yhteyttä ja kysyä suunnittelupalvelustamme juuri sinulle sopivaa pakettia, jokainen piharakennuksemme on mahdollista räätälöidä tarpeen mukaan!
Tuotetiedot:
- Pinta-ala 9,6m2
- Leveys 315,6 cm
- Syvyys 304 cm
Hinta
3390,00 €
(sis. alv 25.5%)Valitse lisävarusteet
Valitsemasi varusteet vaikuttavat tuotteen yhteishintaan. Yhteishinta päivittyy, kun teet valinnat.

Yhteishinta
3390,00 €
(sis. alv 25.5%)
varustetta
Huom: Puuosatoimitus!
Kattava puuosatoimitus sisältää kaiken, mitä pystytykseen tarvitset: materiaalit, kiinnikkeet ja ohjeet. Rakennus toimitetaan oletuksena ilman vesikatetta, jotta saat kaiken valmiiksi kerralla, valitse sopiva katemateriaalimukaan tilaukseen oheisesta valikosta. Puuosat ovat ilman pintakäsittelyä, joten voit maalata tai käsitellä rakennuksen täysin oman makusi mukaan.
- Perheyritys vuodesta 1936
- Valmistettu Kaarinassa




