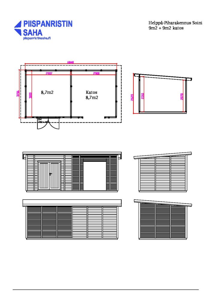
Helppå- Pihavarasto Soini 19 m2 on jaettu kahteen osaan. Toinen puoli on varasto ja toinen polttopuuvarasto. Elementin runko on vahvaa, paneeli 20mm paksu ja hyvin huollettuna pitkäikäinen. Polttopuuvaraston puoli on rimoitettu, jonka ansiosta klapit kuivuvat paremmin katetussa tilassa.

Pyydä tarjous
Voit pyytää myös tarjouksen tuotteesta alla olevalla lomakkeella.
Kuvaus
Helppå-malliston valmiiksi sahatut ja höylätyt puuelementit kokoaa nopeasti ja vaivattomasti. Valmismalliston lisäksi voit tilata yksittäisiä Helppå-elementtejä, joita yhdistämällä rakennat omanlaisesi piharakennuksen. Helppå-malliston jokainen elementti saa sahausmenetelmämme ansiosta puun pintaa korostavan, yksilöllisen jäljen.
Katso myös muut pihavarastot valikoimastamme.
Tuotetiedot:
- Pinta-ala: 19 m2
- Leveys 604 cm
- Syvyys 315,6 cm
Lisätiedot
| Pinta-ala | 19 m2 |
|---|---|
| Mitat | 604 cm x 315,6 cm |
| Paketin mitat ja paino | 240 cm x 115 cm x 164 cm / 1550 kg |














