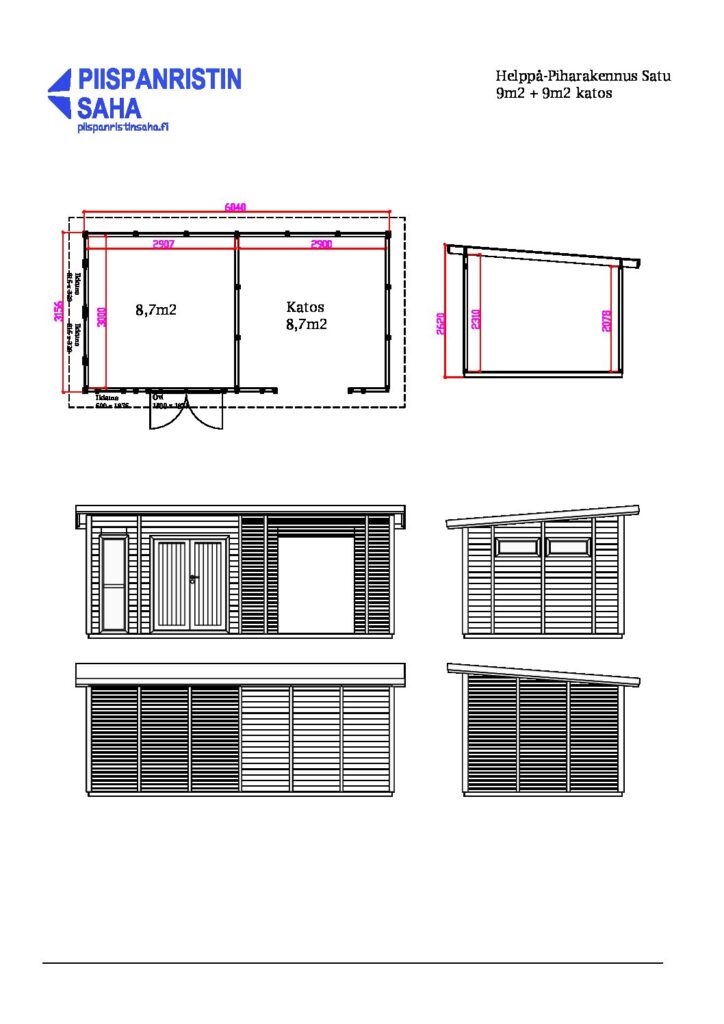
Helppå- Pihavarasto Satu 19m2 on kahteen osaan jaettu varasto. Toinen puoli toimii varastona ja toinen polttopuuvarastona. Elementin runko on vahvaa, paneeli 20mm paksu ja hyvin huollettuna pitkäikäinen. Polttopuuvaraston puolella on rimoitetut seinät, jolloin ilman pääsee kiertämään ja klapit kuivuvat tasaisesti.

Kuvaus
Helppå-malliston valmiiksi sahatut ja höylätyt puuelementit kokoaa nopeasti ja vaivattomasti. Valmismalliston lisäksi yksittäisiä Helppå-elementtejä yhdistämällä rakennat omanlaisesi piharakennuksen. Helppå-malliston jokainen elementti saa sahausmenetelmämme ansiosta puun pintaa korostavan, yksilöllisen jäljen.
Katso myös muut pihavarastot valikoimastamme.
Tuotetiedot:
- Pinta-ala: 19 m2
- Leveys 604 cm
- Syvyys 315,6 cm
Lisätiedot
| Pinta-ala | 19 m2 |
|---|---|
| Mitat | 604 cm x 315,6 cm |
| Paketin mitat ja paino | 240 cm x 115 cm x 164 cm / 1690 kg |














