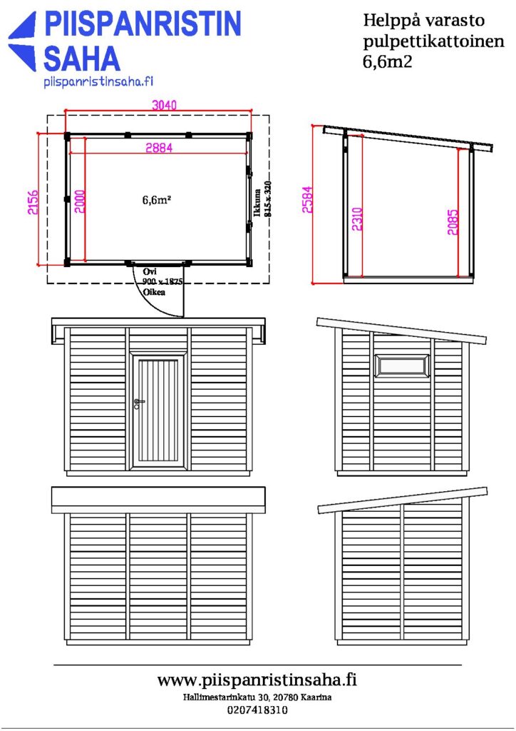
Helppå-pihavarasto lapekattoinen 6,6m2 . Pulpettikattoinen pihavarasto sopii täydellisesti pihapiiriin tai moderniin miljööseen. Elementin runko on vahvaa, paneeli 20mm paksu ja hyvin huollettuna pitkäikäinen.

Pyydä tarjous
Voit pyytää myös tarjouksen tuotteesta alla olevalla lomakkeella.
Kuvaus
Pihavarastossa säilytät kätevästi kaikki pihan tavarat suojassa kaikkina vuodenaikoina. Varastossa on pulpettikatto ja matala, leveä ikkuna sivuseinällä antamassa valoa. Toimitus sisältää puuosien lisäksi ulko- ja sisäovet saranoin ja lukkorungolla, ikkunat heloitettuna ja lasitettuna. Pihavarasto toimitetaan käsittelemättömänä, joten voit viimeistellä ulkoasun haluamallasi tavalla, saat juuri sellaisen pihavaraston kuin haluat.
Tuotetiedot:
- Pinta-ala: 6,6 m2
- Leveys 304 cm
- Syvyys 215,6 cm
Lisätiedot
| Pinta-ala | 6,6 m2 |
|---|---|
| Mitat | 304 cm x 215,6 cm |
| Paketin mitat ja paino | 240 cm x 115 cm x 108 cm / 720 kg |














